Porzione di bifamiliare in vendita

Sovico, Via Don Ettore Cazzaniga
€ 379.000
4 locali 4 locali
200 Mq 200 Mq
3 bagni 3 bagni

Porzione di bifamiliare in vendita

Sovico, Via Don Ettore Cazzaniga

Descrizione annuncio

Porzione di Villa Bifamiliare in Centro a Sovico

Nel cuore di Sovico, in posizione centralissima e comoda con tutti i principali servizi, proponiamo in vendita elegante porzione di villa bifamiliare libera su tre lati, ideale per chi desidera indipendenza, ampi spazi e comfort moderni.

L’abitazione si sviluppa su due livelli abitativi oltre a una comoda cantina al piano interrato.

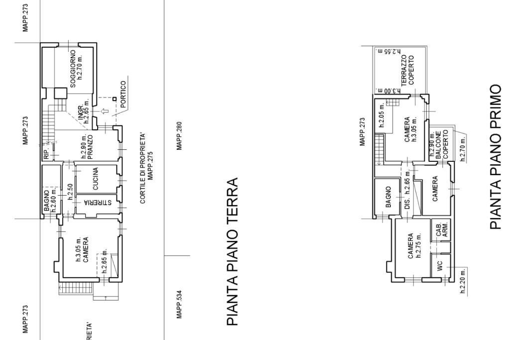
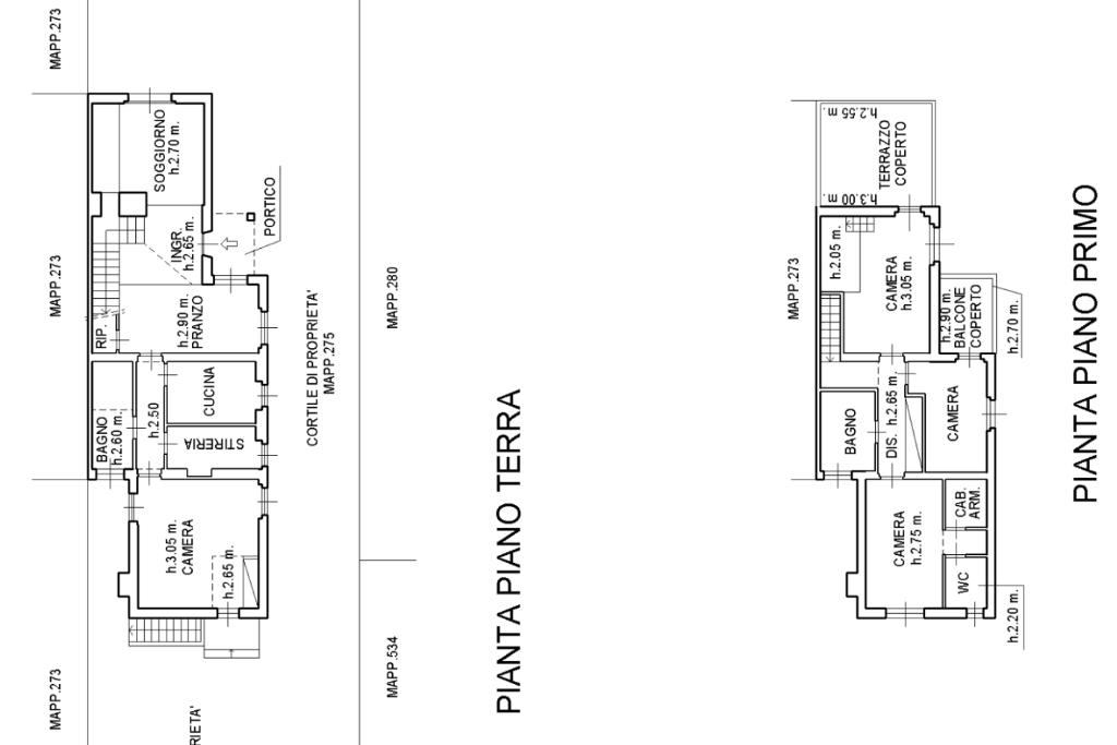
Piano Terra:
Ampia zona living con doppio soggiorno, cucina abitabile separata, ulteriore ambiente versatile ideale come studio o secondo salotto,con ingresso indipendente, bagno di servizio e lavanderia.

Piano Primo:
Tre camere da letto, tutte di generose dimensioni e con accesso al terrazzo. La camera matrimoniale con cabina armadio è completa di bagno privato en suite. Presente un secondo bagno a servizio del piano.

Gli ambienti si distinguono per la cura e la qualità delle finiture: pavimentazione in pietra naturale nella zona giorno, parquet nella zona notte, infissi in legno con doppio vetro persiane in legno e PVC.

All’esterno troviamo un ampio cortile privato, perfetto per momenti di relax e convivialità, con doppio box auto e locale indipendente adibito a studio / sala hobby o spazio gioco.

Annesso solaio.

Dotazioni e comfort:

Impianto fotovoltaico da 6 kW per la produzione di energia elettrica

Riscaldamento a gas con caldaia di recente installazione

Ottimo stato di conservazione

Una soluzione completa, spaziosa e funzionale, perfetta per famiglie che cercano comodità, privacy e centralità.

Contattaci per fissare un appuntamento e scoprire dal vivo tutto il potenziale di questa splendida abitazione. Saremo felici di accompagnarti nella visita.

Mostra tutto

Nelle vicinanze

Trasporto pubblico Trasporto pubblico
stazione di Macherio-Sovico
stazione di Macherio-Sovico
310 m
Triuggio-Ponte Albiate
Triuggio-Ponte Albiate
1,6 Km
Trasporto pubblico
350 m
Macherio
Macherio
700 m
Macherio-Canonica
Macherio-Canonica
1,8 Km
Ricariche auto elettriche Ricariche auto elettriche
Piazza Grandi
1,7 Km
U2 Supermercato Biassono | EnelX
1,7 Km
Scuole Scuole
Scuola Secondaria di Primo Grado Giuseppe Parini
100 m
Scuola secondaria di primo grado "Giacomo Leopardi"
660 m
Scuola primaria "Alessandro Manzoni"
660 m
Scuola Primaria Don Milani
710 m
Scuole
1,5 Km
Farmacia Farmacia
Farmacia di Macherio
560 m
Farmacia
1,7 Km
Farmacia Negri
1,8 Km
Farmacia Ariani
1,9 Km
Farmacia Bareggia
2,5 Km
Ospedali Ospedali
Dedalo Psicologia
1,8 Km
Supermercati Supermercati
Esselunga
890 m
LD Market
1,7 Km
Supermercati
1,7 Km
Coop
1,7 Km
Eurospin
2,2 Km
Negozi Negozi
Sanvito
1,5 Km
Negozi
1,7 Km
Civas Abbigliamento
1,7 Km
Abbigliamento Fumagalli
1,8 Km
Dal Prestiné Aliprandi
1,8 Km
Bar Bar
Bar
1,5 Km
Vinyl Cafe
2,7 Km
Feel
2,9 Km
Ristoranti Ristoranti
La Filanda
660 m
Sushi e Involtini
1,1 Km
Extroso Canonca
1,4 Km
Bacarà
1,4 Km
La Dispensa
1,5 Km
Mostra tutto

Caratteristiche

Rif.:
61185352
Piano:
2 di 2
Box:
2
Posti auto:
1
Balconi:
2
Terrazzi:
2
Mostra tutto
Prezzo Prezzo
€ 379.000
Rata mutuo Rata mutuo
€ 1.786 / mese
Spese annue Spese annue
€ 0
Proponi il tuo prezzoProponi il tuo prezzo
Immobile valutato con T·Valuta

Classe Energetica

G
G
G
G
G
G
G
G
G
EP globale non rinnovabile:
199.00 kW h/m² anno
EP globale rinnovabile:
199.00 kW h/m² anno
EP invernale del fabbricato:
EP estiva del fabbricato:
Anno di costruzione:
1940
Riscaldamento:
Autonomo
Tipo impianto:
A radiatori
Tipo alimentazione:
Metano

Ti interessa visionare l'immobile?

Fissa un appuntamento  Fissa un appuntamento

Richiedi informazioni

Clicca su Leggi per aprire l'informativa
* Questi campi sono obbligatori

Calcola il tuo mutuo

Semplice e senza impegno
Anticipo

( % )
Mutuo

( % )

pochi semplici passi

inserisci i tuoi dati
Questionario completato
Grazie per aver richiesto un appuntamento senza impegno con un nostro Consulente del Credito e Assicurativo.

Hai inserito correttamente tutti i dati necessari e a breve riceverai una e-mail con un link da convalidare per inviare i tuoi dati.
Affiliato
Tr.al.so. Sas
Via Giovanni da Sovico, 19 20845 Sovico (MB)
Via Giovanni da Sovico, 19 20845 Sovico (MB)
Zona: Sovico-Macherio
Mostra su mappa
Orari: Lunedì - Venerdì 9.00 - 12.30 e 15.00- 20.00 - Sabato chiusura alle 17.00
Affiliato
Tr.al.so. Sas
Via Giovanni da Sovico, 19 20845 Sovico (MB)

2026 Tecnocasa Franchising S.p.A. - P. IVA 08365160152 - Via Monte Bianco 60/A 20089 Rozzano (MI). Ogni agenzia ha un proprio titolare ed è autonoma. Privacy policy | Policy utilizzo | Cookie policy