Villa singola in vendita

Sovico, Via Silvio pellico
€ 299.000
3 locali 3 locali
133 Mq 133 Mq
1 bagno 1 bagno

Villa singola in vendita

Sovico, Via Silvio pellico

Descrizione annuncio

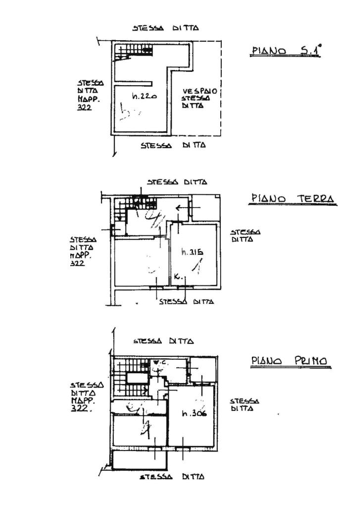
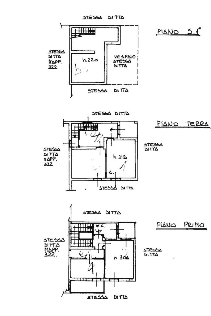
Sovico. Nel cuore di un contesto tranquillo e residenziale, proponiamo in vendita villa singola disposta su due livelli, ideale per chi desidera realizzare la casa dei propri sogni.

Al piano terra, l’immobile accoglie con una spaziosa cucina abitabile e un soggiorno luminoso, perfetti per vivere la quotidianità in famiglia. Una comoda scala interna collega al piano primo, dove si trovano due ampie camere da letto, entrambe con affaccio su balcone, che regalano luce e apertura agli ambienti.

All’esterno, giardino pianeggiante privato con edificabilità residua, ottima opportunità per ampliamenti o nuove soluzioni abitative.

Completamente da ristrutturare, rappresenta la scelta ideale per chi cerca una soluzione indipendente personalizzabile, immersa nel verde e con ottime potenzialità.

Contattaci ora per fissare una visita e scoprire come trasformare questo spazio nella tua prossima casa.

Mostra tutto

Nelle vicinanze

Trasporto pubblico Trasporto pubblico
stazione di Macherio-Sovico
stazione di Macherio-Sovico
1,1 Km
Triuggio-Ponte Albiate
Triuggio-Ponte Albiate
1,3 Km
Trasporto pubblico
380 m
Viale Lombardia, 4 (Albiate)
Viale Lombardia, 4 (Albiate)
860 m
Macherio-Canonica
Macherio-Canonica
2,3 Km
Ricariche auto elettriche Ricariche auto elettriche
Piazza Grandi
990 m
U2 Supermercato Biassono | EnelX
2,2 Km
Scuole Scuole
Scuola Primaria Don Milani
550 m
Scuola Secondaria di Primo Grado Giuseppe Parini
630 m
Scuole
900 m
Scuola secondaria di 1° grado
930 m
Scuola primaria "Alessandro Manzoni"
1,3 Km
Farmacia Farmacia
Farmacia
990 m
Farmacia di Macherio
1,3 Km
Farmacia Negri
1,4 Km
Lloyds Farmacia San Salvatore
2,1 Km
LLoid Comunale n. 2
2,5 Km
Ospedali Ospedali
Dedalo Psicologia
1,1 Km
Ospedale Vittorio Emanuele III
2,6 Km
Supermercati Supermercati
Coop
1,0 Km
Supermercati
1,5 Km
Esselunga
1,6 Km
LD Market
2,0 Km
Effemarket
2,5 Km
Negozi Negozi
Sanvito
870 m
Negozi
950 m
Abbigliamento Fumagalli
1,1 Km
Civas Abbigliamento
1,3 Km
Dal Prestiné Aliprandi
1,5 Km
Bar Bar
Bar
760 m
Vinyl Cafe
2,1 Km
Feel
2,4 Km
MOLTO Club & Restaurant
2,6 Km
Kiss Kiss Cafè
2,7 Km
Ristoranti Ristoranti
La Dispensa
770 m
Trattoria Vecchia Brianza
970 m
Pizzeria San Fermo
1,1 Km
Parco dei Principi
1,2 Km
Trattoria A la vegia manera
1,2 Km
Mostra tutto

Caratteristiche

Rif.:
61099990
Piano:
2 di 2 (Piano su più livelli)
Balconi:
2
Camere da letto:
2
Arredamento:
Assente
Condizionamento:
Assente
Mostra tutto
Prezzo Prezzo
€ 299.000
Rata mutuo Rata mutuo
€ 1.411 / mese
Spese annue Spese annue
€ 0
Proponi il tuo prezzoProponi il tuo prezzo
Immobile valutato con T·Valuta

Classe Energetica

G
G
G
G
G
G
G
G
G
EP globale non rinnovabile:
199.00 kW h/m² anno
EP globale rinnovabile:
199.00 kW h/m² anno
EP invernale del fabbricato:
EP estiva del fabbricato:
Anno di costruzione:
1950
Riscaldamento:
Autonomo
Tipo impianto:
A radiatori
Tipo alimentazione:
Metano

Ti interessa visionare l'immobile?

Fissa un appuntamento  Fissa un appuntamento

Richiedi informazioni

Clicca su Leggi per aprire l'informativa
* Questi campi sono obbligatori

Calcola il tuo mutuo

Semplice e senza impegno
Anticipo

( % )
Mutuo

( % )

pochi semplici passi

inserisci i tuoi dati
Questionario completato
Grazie per aver richiesto un appuntamento senza impegno con un nostro Consulente del Credito e Assicurativo.

Hai inserito correttamente tutti i dati necessari e a breve riceverai una e-mail con un link da convalidare per inviare i tuoi dati.
Affiliato
Tr.al.so. Sas
Via Giovanni da Sovico, 19 20845 Sovico (MB)
Via Giovanni da Sovico, 19 20845 Sovico (MB)
Zona: Sovico-Macherio
Mostra su mappa
Orari: Lunedì - Venerdì 9.00 - 12.30 e 15.00- 20.00 - Sabato chiusura alle 17.00
Affiliato
Tr.al.so. Sas
Via Giovanni da Sovico, 19 20845 Sovico (MB)

2025 Tecnocasa Franchising S.p.A. - P. IVA 08365160152 - Via Monte Bianco 60/A 20089 Rozzano (MI). Ogni agenzia ha un proprio titolare ed è autonoma. Privacy policy | Policy utilizzo | Cookie policy