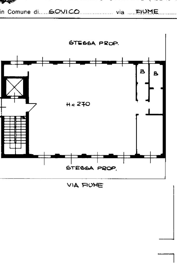
Multilocale in affitto

Sovico, Via fiume
€ 1.000 / mese
1 locale 1 locale
170 Mq 170 Mq
2 bagni 2 bagni

Multilocale in affitto

Sovico, Via fiume

Descrizione annuncio

Ufficio / Studio professionale in affitto – categoria A/10

Proponiamo in locazione spazio accatastato A/10, ideale per studi professionali, uffici, coworking, studi privati o attività come piccola palestra.

L’immobile è inserito in palazzina indipendente senza spese condominiali, un grande vantaggio in termini di gestione dei costi. La soluzione si presta facilmente a diverse configurazioni lavorative grazie alla sua versatilità degli spazi.

Situato in tranquilla zona residenziale, proprio di fronte alle scuole medie, garantisce facile accesso e buona frequentazione della zona.
Presente inoltre possibilità di parcheggio proprio davanti all’immobile, comoda sia per clienti che per collaboratori.

Soluzione ideale per professionisti o attività che cercano uno spazio funzionale, facilmente raggiungibile e con costi contenuti.

Contattaci per maggiori informazioni o per fissare un appuntamento di visita senza impegno. Saremo lieti di accompagnarti a scoprire questa interessante opportunità.

Mostra tutto

Nelle vicinanze

Trasporto pubblico Trasporto pubblico
stazione di Macherio-Sovico
stazione di Macherio-Sovico
490 m
Triuggio-Ponte Albiate
Triuggio-Ponte Albiate
1,5 Km
Trasporto pubblico
180 m
Macherio
Macherio
850 m
Macherio-Canonica
Macherio-Canonica
1,9 Km
Ricariche auto elettriche Ricariche auto elettriche
Piazza Grandi
1,5 Km
U2 Supermercato Biassono | EnelX
1,8 Km
Scuole Scuole
Scuola Secondaria di Primo Grado Giuseppe Parini
70 m
Scuola Primaria Don Milani
620 m
Scuola secondaria di primo grado "Giacomo Leopardi"
780 m
Scuola primaria "Alessandro Manzoni"
790 m
Scuole
1,4 Km
Farmacia Farmacia
Farmacia di Macherio
730 m
Farmacia
1,5 Km
Farmacia Negri
1,7 Km
Farmacia Ariani
2,0 Km
Farmacia Bareggia
2,5 Km
Ospedali Ospedali
Dedalo Psicologia
1,6 Km
Supermercati Supermercati
Esselunga
1,0 Km
Coop
1,6 Km
Supermercati
1,6 Km
LD Market
1,7 Km
Eurospin
2,3 Km
Negozi Negozi
Sanvito
1,4 Km
Negozi
1,5 Km
Civas Abbigliamento
1,6 Km
Abbigliamento Fumagalli
1,6 Km
Dal Prestiné Aliprandi
1,7 Km
Bar Bar
Bar
1,3 Km
Vinyl Cafe
2,5 Km
Feel
2,8 Km
Le Le Bahia
3,0 Km
Ristoranti Ristoranti
La Filanda
830 m
Sushi e Involtini
1,3 Km
La Dispensa
1,3 Km
Extroso Canonca
1,5 Km
Trattoria Vecchia Brianza
1,5 Km
Mostra tutto

Caratteristiche

Rif.:
61181399
Piano:
1 di 2 (ultimo Piano)
Arredamento:
Assente
Condizionamento:
Centralizzato
Ascensore:
No
Riscaldamento:
Autonomo
Mostra tutto
Prezzo Prezzo
€ 1.000 / mese
Spese annue Spese annue
€ 0

Classe Energetica

G
G
G
G
G
G
G
G
G
EP globale non rinnovabile:
199.00 kW h/m² anno
EP globale rinnovabile:
142.00 kW h/m² anno
EP invernale del fabbricato:
EP estiva del fabbricato:
Anno di costruzione:
1990
Riscaldamento:
Autonomo
Tipo impianto:
Ad aria
Tipo alimentazione:
Metano

Ti interessa visionare l'immobile?

Fissa un appuntamento  Fissa un appuntamento

Richiedi informazioni

Clicca su Leggi per aprire l'informativa
* Questi campi sono obbligatori
Affiliato
Tr.al.so. Sas
Via Giovanni da Sovico, 19 20845 Sovico (MB)
Via Giovanni da Sovico, 19 20845 Sovico (MB)
Zona: Sovico-Macherio
Mostra su mappa
Orari: Lunedì - Venerdì 9.00 - 12.30 e 15.00- 20.00 - Sabato chiusura alle 17.00
Affiliato
Tr.al.so. Sas
Via Giovanni da Sovico, 19 20845 Sovico (MB)

2026 Tecnocasa Franchising S.p.A. - P. IVA 08365160152 - Via Monte Bianco 60/A 20089 Rozzano (MI). Ogni agenzia ha un proprio titolare ed è autonoma. Privacy policy | Policy utilizzo | Cookie policy