Bilocale in vendita

Macherio, Via Roma
€ 105.000
Prezzo aggiornato
2 locali 2 locali
65 Mq 65 Mq
1 bagno 1 bagno

Bilocale in vendita

Macherio, Via Roma

Descrizione annuncio

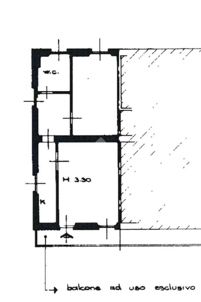
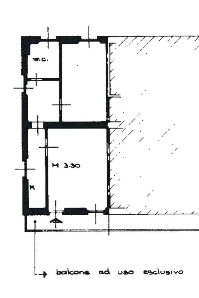
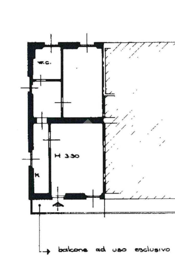
Nel cuore di Macherio, all’interno di una caratteristica cascina ristrutturata negli anni ’90, proponiamo un ampio bilocale di 65 mq commerciali posto al secondo ed ultimo piano (senza si compone di ingresso, soggiorno accogliente, cucinotto separato, disimpegno, bagno con box doccia e una spaziosa camera matrimoniale. Gli ambienti risultano luminosi e ben distribuiti, ideali per chi cerca comfort e praticità in un contesto tranquillo e principali:

Aria condizionataCaldaia recentePavimenti in ceramica nella zona giorno e in parquet nella camera da lettoBasse spese condominialiCompleta la proprietà un box singolo disponibile a parte al prezzo di € 15.000. Una soluzione ideale sia come abitazione principale che come investimento, grazie alla posizione centrale e alla comodità dei servizi. Contattaci per fissare un appuntamento e scoprire di persona questo bilocale unico nel suo genere!
Mostra tutto

Nelle vicinanze

Trasporto pubblico Trasporto pubblico
stazione di Macherio-Sovico
stazione di Macherio-Sovico
360 m
Triuggio-Ponte Albiate
Triuggio-Ponte Albiate
2,2 Km
Macherio
Macherio
100 m
Trasporto pubblico
770 m
Macherio-Canonica
Macherio-Canonica
1,7 Km
Ricariche auto elettriche Ricariche auto elettriche
U2 Supermercato Biassono | EnelX
1,2 Km
Piazza Grandi
2,3 Km
Scuole Scuole
Scuola secondaria di primo grado "Giacomo Leopardi"
200 m
Scuola primaria "Alessandro Manzoni"
220 m
Scuola Secondaria di Primo Grado Giuseppe Parini
720 m
Scuola Primaria Aldo Moro
1,1 Km
Scuola Primaria Don Milani
1,3 Km
Farmacia Farmacia
Farmacia di Macherio
240 m
Farmacia Ariani
1,3 Km
Farmacia Bareggia
2,3 Km
Farmacia
2,3 Km
Farmacia Negri
2,4 Km
Ospedali Ospedali
Dedalo Psicologia
2,3 Km
Centro Medico
2,8 Km
Supermercati Supermercati
Esselunga
280 m
LD Market
1,4 Km
Eurospin
1,5 Km
Effemarket
2,1 Km
Supermercati
2,2 Km
Negozi Negozi
Sanvito
2,2 Km
Negozi
2,3 Km
Civas Abbigliamento
2,3 Km
Dal Prestiné Aliprandi
2,4 Km
Abbigliamento Fumagalli
2,4 Km
Bar Bar
Bar
2,1 Km
Ristoranti Ristoranti
La Filanda
250 m
Sushi e Involtini
480 m
Happy Days
1,3 Km
Extroso Canonca
1,5 Km
Primo Piano
1,6 Km
Mostra tutto

Caratteristiche

Rif.:
61112682
Piano:
2 di 2 (ultimo Piano)
Box:
1
Balconi:
1
Camere da letto:
1
Arredamento:
Assente
Mostra tutto
Prezzo Prezzo
€ 105.000
Prezzo box Prezzo box
€ 15.000
Rata mutuo Rata mutuo
€ 495 / mese
Spese annue Spese annue
€ 400
Proponi il tuo prezzoProponi il tuo prezzo
Immobile valutato con T·Valuta

Classe Energetica

E
E
E
E
E
E
E
E
E
EP globale non rinnovabile:
234.37 kW h/m² anno
EP globale rinnovabile:
5.99 kW h/m² anno
EP invernale del fabbricato:
EP estiva del fabbricato:
Anno di costruzione:
1930
Riscaldamento:
Autonomo
Tipo impianto:
A radiatori
Tipo alimentazione:
Metano

Prezzo ridotto di €1 (5%%)

Ti interessa visionare l'immobile?

Fissa un appuntamento  Fissa un appuntamento

Richiedi informazioni

Clicca su Leggi per aprire l'informativa
* Questi campi sono obbligatori

Calcola il tuo mutuo

Semplice e senza impegno
Anticipo

( % )
Mutuo

( % )

pochi semplici passi

inserisci i tuoi dati
Questionario completato
Grazie per aver richiesto un appuntamento senza impegno con un nostro Consulente del Credito e Assicurativo.

Hai inserito correttamente tutti i dati necessari e a breve riceverai una e-mail con un link da convalidare per inviare i tuoi dati.
Affiliato
Tr.al.so. Sas
Via Giovanni da Sovico, 19 20845 Sovico (MB)
Via Giovanni da Sovico, 19 20845 Sovico (MB)
Zona: Sovico-Macherio
Mostra su mappa
Orari: Lunedì - Venerdì 9.00 - 12.30 e 15.00- 20.00 - Sabato chiusura alle 17.00
Affiliato
Tr.al.so. Sas
Via Giovanni da Sovico, 19 20845 Sovico (MB)

2026 Tecnocasa Franchising S.p.A. - P. IVA 08365160152 - Via Monte Bianco 60/A 20089 Rozzano (MI). Ogni agenzia ha un proprio titolare ed è autonoma. Privacy policy | Policy utilizzo | Cookie policy